交通信号灯 交通信号控制机 交通显示屏 路口预警设备 智慧斑马线 高速产品 杆件及定制产品
信号灯杆

采用优质钢材制作

优质生产工艺

热镀锌喷塑处理

20年不生锈

支持来图定制

在线咨询 13026685849
产品规格
产品特点
产品尺寸
配件推荐
订购信息

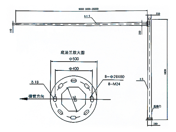
杆件结构:常规八角杆

杆体处理:热镀锌喷塑

杆体高度:6.8m

杆体厚度:6-12mm

横臂长度:6-12m(可选)

横臂厚度:4-12mm

底  法  兰:φ550*28mm,M27*1500*8



在线留言